В Ужгороді відбудеться громадське обговорення кількох проектів детальних планів територій

Відповідно до розпорядження міського голови від 22.05.2018 № 222 «Про проведення громадських слухань», дотримуючись статті 21 Закону України «Про регулювання містобудівної діяльності», керуючись постановою Кабінету Міністрів України від 25.05.2011 року № 555, з метою врахування громадських інтересів та визначення планувальної організації та розвитку територій м. Ужгород з 23.05.2018 року по 21.06.2018 року будуть проводитися громадські слухання по містобудівній документації – проектах детальних планів територій м. Ужгород, а саме:
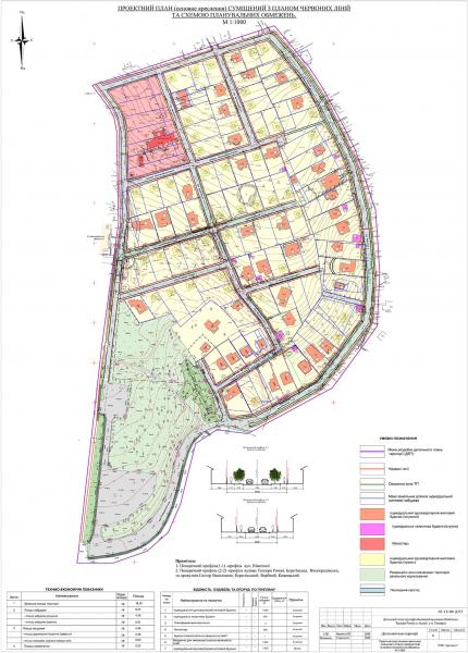
Детальний план території, обмеженої вулицями Робочою, Руською, Мукачівською та Івана Анкудінова.
Детальний план території, обмеженої вулицями Північною, Теодора Ромжі та Акацій (за кошти інвестора).
Детальніше про планування територій і куди подавати пропозиції – на офіційному сайті Ужгородської міської ради за посиланням http://rada-uzhgorod.gov.ua/provodyatsya-gromadski-sluhann…/


Відділ інформаційної роботи Ужгородської міської ради
До теми
- В Ужгороді сьогодні попрощалися із 47-річним сержантом Віталієм Бичаком
- В Ужгородському ліцеї №5 імені Івана Чендея сьогодні підняли Прапор Надії
- Завтра в Ужгороді прощатимуться із Захисником Віталієм Бичаком
- Музей в Ужгороді зібрав кошти на зарядні станції для військових через продаж унікального видання
- В Ужгороді відбулася щорічна акція "Писанки у стилі Енді Воргола"
- В Ужгороді на площі Поштовій відкрили виставку Великодніх писанок
- В Ужгороді розпочав роботу Великодній ярмарок
- В Ужгороді сьогодні попрощалися із 33-річним солдатом Михайлом Шипом
- Завтра в Ужгороді попрощаються із захисником Михайлом Шипом.
- В Ужгороді сьогодні попрощалися із 43-річним солдатом Олександром Луцьом
- В Ужгороді завтра прощатимуться із полеглим захисником
- Ужгородська музична школа №1 дала звітний концерт, на якому зібрали кошти для захисників
- Кілометри заради фронту: Ужгород готується до напівмарафону
- В Ужгороді відкрили нову сучасну спортивну залу для занять боксом
- В Ужгороді з нагоди Міжнародного дня театру привітали тих, хто присвятив своє життя сцені
- В Ужгороді відкрили перший корпус Комплексного соціального хабу «Благо»
- Символ незламної дружби: в Ужгороді делегація з Чехії висадила липу у сквері Масарика
- Гроші з продажу – для ЗСУ: в Ужгороді проводять благодійну виставку-ярмарок "Світ писанки"
- Як розвиватимуться громади: на Закарпатті відбувся стратегічний воркшоп
- В Ужгороді відзначили 12-ту річницю Національної гвардії України

До цієї новини немає коментарів