Народному обранцю бракує лише «кілька» квадратів міської землі...
А так у нього вже давно все є: і чималий маєток, і зовсім недешевий позашляховик.
У той час, коли у обласному центрі Закарпаття намагаються винайти земельні ділянки для забезпечення землею воїнів АТО та їхніх дружин. Окремі міські обранці не гребують привласненням і 2-3 ділянок, оформляючи їх на родичів, які живуть, скажімо, на Іршавщині. У даному випадку мова йде про міського депутата Віктора Бобіту.
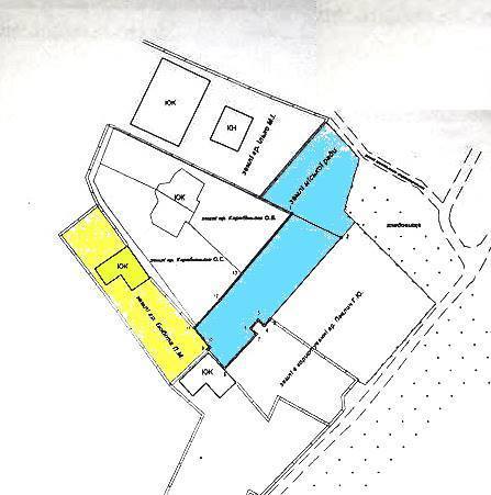
Як стало відомо із джерел в Ужгородській міськраді, Бобіта Віктор шляхом оформлення документації на підставних осіб (родичів) та ряду інших махінацій, зловживаючи статусом депутата в міськраді, протиправно заволодів двома земельними ділянками, які знаходяться біля його приватного маєтку, а саме, межують з його земельною ділянкою по вул. Кошицькій.
Виділення даних ділянок проведено з грубими порушеннями земельного та містобудівного законодавства, а крім того — порушено вимоги санітарно-охоронювальних зон міського кладовища «Кальварія».
Так, рішенням сесії ужгородської міської ради №1507 від 07.11.14 р. двом родичам депутата Бобіти, мешканцям с. Білки Іршавского р-ну надано дозвіл на розробку проектів відведення земельних ділянок з подальшою передачею їх у власність, а саме: по вул. Кошицькій в м. Ужгород площею 0.0870 Га (родич – Костак М.Ю.) та площею 0,0660 Га (родич – Костак О.П.) для будівництва та обслуговування житлових будинків господарських будівель та споруд.

Межі даних земельних ділянок межують з міським кладовищем «Кальварія», тобто безпосередньо попадають в межі санітарно захисної зони кладовища, чим саме не можуть фактично використовуватись для здійснення будь-якого будівництва, а саме використання за цільовим призначення вказаним в рішенні сесії міської ради. Слід зауважити що охоронна зона кладовищ складає 300 метрів в межах якої будь-яке будівництво заборонено.
Виділення даних земельних ділянок супроводжувалось грубими порушеннями містобудівного законодавства, оскільки вказані землі замкнуті існуючою забудовою з відсутністю вільного будь-якого доступу (не забезпечено під’їздних доріг та будь-яких інших шляхів доступу).
Слід зауважити, що вказані земельні ділянки безпосередньо межують з земельною ділянкою по вул. Кошицька, яка належіть громадянину Бобіті. Це вказує на пряму зацікавленість даної особи в захопленні цих ділянок з метою розширення свого дворогосподарства.
Крім того, виникає питання, як можливо в той час, коли немає можливості виділити ділянки учасниками АТО та малозабезпеченим мешканцям м. Ужгорода виділяються ділянки громадянам, які навіть не проживають в м. Ужгород, та не перебувають у черзі на земельні ділянки.

У той же час, пан Бобіта — не є бідним чоловіком: має чималий маєток та зовсім недешевий позашляховик. Очевидно, для повної гармонії, депутату бракує лише квадратів міської землі, повідомляє "Інформаційне Закарпаття"

До цієї новини немає коментарів